中国石油大学(北京)是一所石油特色鲜明、以工为主、多学科协调发展的国家教育部直属全国重点大学。是首批“211工程”重点建设和 “优势学科创新平台”建设并设有研究生院的高等院校之一。60多年来,学校为国家石油石化工业的发展奠定了人才基础,被誉为“石油人才的摇篮”。
学校建有塑胶运动场、体育馆、游泳馆等场馆,运动设施齐全,作为教育部招收高水平运动队的试点高校,我校拥有一支经验丰富,素质过硬的教练队伍,多年来,我校高水平运动队在国内外多项体育赛事屡获殊荣。为了进一步促进我校体育运动的发展,推动大学生素质教育工作的全面提高,根据教育部《关于做好2017年普通高等学校部分特殊类型招生工作的通知》(教学司[2016]10号)文件相关规定,2017年我校继续招收高水平运动队考生。
一、招收项目与招生计划

二、报名条件
具备以下条件之一且年龄不超过22周岁者(1995年9月1日之后出生)方可报名。
1.高级中等教育学校毕业,获得国家二级运动员(含)以上证书且高中阶段在省级(含)以上比赛中获得集体项目前六名的主力队员或个人项目前三名者;
2.具有高级中等教育毕业同等学力,获得国家一级运动员(含)以上证书者或近三年内在全国或国际集体项目比赛中获得前八名的主力队员。
凡以同等学力报考的考生必须提供与高级中等教育相当的学习证明和成绩单,由省级教育行政部门协助招生学校对其资格进行认定。未经资格认定的同等学力考生不得报考。
考生所持本人运动员技术等级证书中的运动项目应与报考的运动项目一致,(原则上运动小项也应对应一致)。
三、报名办法:
(一)网上报名(2017年2月18日—2017年3月3日)
考生须通过教育部阳光高考特殊类型招生报名平台进行网上报名,网址http://gaokao.chsi.com.cn/zzbm,按系统使用说明进行注册后,根据要求准确完整地填写申请表,并经签字确认后扫描或拍照上传完成网上报名。
1.考生限报3所学院。报名系统中,考生根据个人体育特长填报一个项目类别,如:田径、游泳、羽毛球。选报的专业志愿不超过2个。
2.考生须如实填写“中国石油大学(北京)2017高水平运动员招生申请表”(简称“申请表”),其中成绩信息、综合信息由毕业高中审核,校长签字并加盖学校公章。“申请表”扫描件、运动员等级证书等各类“证明材料”的扫描件或照片通过系统提交。
(二)邮寄初审材料(截至2017年3月3日(以EMS寄出邮戳时间为准))
考生须使用A4纸打(复)印相关材料,并务必通过EMS(邮政特快专递)寄送至京市昌平区中国石油大学(北京)体育教学部,马晓旭老师 信封上注明“高水平招生报名”。
报名材料包括:
1.申请表(含个人简历),通过报名系统生成并打印,本人签字、校长签字并加盖学校公章;
2.考生身份证复印件(正反面);
3.《高水平运动员推荐表》,推荐表中请注明推荐人联系方式,须加盖中学公章和校长签字,中学体育教研室负责人推荐意见和签字,并对推荐材料真实性负责;
4. 高中阶段二级(含)以上国家等级运动员证书复印件;
5. 考生通过国家体育总局“运动员技术等级综合查询系统”http://jsdj.sport.gov.cn/
并使用A4纸打印出本人运动员等级证书资料;
6. 高中阶段运动会秩序册、成绩册、成绩证书复印件。
考生和所在中学须对以上材料的真实性负责。
网上报名材料和完整的纸质报名材料缺一不可。无论录取与否,申请材料概不退还,请考生保留重要原件。
四、选拔流程
(一)查询初审结果(2017年3月13日)
本科招生办公室汇总报名名单,报校招生工作小组组长审批。
体育教学部负责组织各项目专家对考生的报名材料进行审核,结合我校高水平运动队建设需要,根据考生政治思想表现、学习成绩和专项水平等,择优拟定初审合格名单,校本科招生办公室审查,校招生工作小组组长审批,发布初审合格名单。
2017年3月13日考生可在我校本科招生网(http://www.cup.edu.cn/bkzs/)和报名系统上查询初审结果,并按要求确认考试,时间:3月13日-3月14日。我校不安排电话和书面通知。
(二)打印准考证(2017年3月14日-3月18日)
由学校确认的考生,在指定时间登陆报名系统自行打印准考证;报到当天经审核盖章后,准考证生效。
(三)测试报到(2017年3月18日)
报到时间:2017年3月18日(8:00-19:00)。
报到地点:中国石油大学(北京)体育馆形体房。
考生须提供身份证、高中阶段二级(含)以上国家等级运动员证书、运动会秩序册、成绩册、成绩证书等原件。
一寸近期彩色免冠证件照4张。
凡参加我校高水平运动队招生测试的所有考生须购买测试期间的个人“人身意外伤害保险”。
体检合格,并签订“同意接受兴奋剂检查和不使用兴奋剂的承诺书”,方允许参加测试。
(四)专项测试(2017年3月19日-20日)
体育专项测试时间:2017年3月19日-20日。
测试地点:
游泳项目在中国石油大学(北京)游泳馆。
羽毛球项目在中国石油大学(北京)体育馆。
田径项目在中国石油大学(北京)田径场。
五、测试内容:
1.游泳项目
游泳专项考生测试所报单项项目。
2.田径项目
田径专项测试,单项考生测试所报单项。十项全能考生测试4项(测试项目从十项全能项目中选择,不测试长投项目),七项全能考生测试3项(测试项目从七项全能项目中选择,不测试长投项目)。
3.羽毛球项目
测试指标与所占分值
(1)场地移动
测试方法:
考生站在场地右侧单打底线以外(右手持拍)先进行前后移动,听到口令(同时开表)后,直线上网,单手触网后,直线后退踩底线为完成一个来回,反复进行5次。第5次上网触网后,后退踩底线同时要求双脚出单打边线,并连续做5次左右移动。
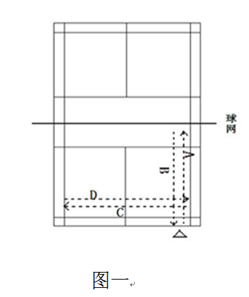
左右移动,用持拍手触球,面向球网转身,然后向右侧移动用持拍手触球,为完成一次左右移动。如此反复进行5次。当完成5个回合的左右后在右侧(右手持拍)触线时停表,记录所用时间。(见图一)

(2)前场技术(正反手放、勾、推)
测试方法:
在右侧(左侧)区击球(共20个球)
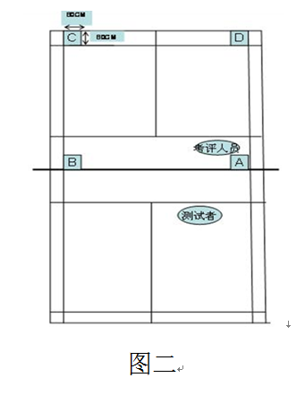
由考评人员向测试者右(左)侧网前抛球,测试者站在前发球线外上网并按照固定的顺序(共击8个球):放、勾、推、推技术把球分别击到指定的区域内(A、B、C、D),并轮转2次。最后剩下的两球由考生将球击到提前选择的2个区域内(从A、B、C、D中选其二,但是两点不能相同)。(见图二)

(3)后场技术(直线和斜线高远球、吊球)
测试方法:
在右侧(左侧)区击球(共20个球)
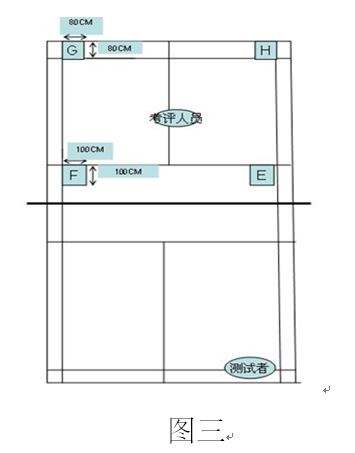
由考评人员发高球,考生站在右场区双打后发球线外进行斜线分别应用高球和吊球技术将球击到指定的区域内(E、F、G、H),并轮转2次。最后两球的落点由考生在E、F中选择一个和G、H中在一个。(见图三)

4.比赛
先进行小组循环比赛决出全部名次。赛制一局,31分每球得分。16分交换场地。决出小组前2名进行淘汰决出全部名次。第一组第一对阵第三组第二。第二组第一对阵第四组第二。以此类推。
淘汰赛为21分制,三局二胜。(比赛用球为自备球,两名运动员轮流用)
六、录取
1.入选资格:
我校在高水平运动队选拔过程,遵循“公平、公正、公开、综合评价、择优录取”原则。对于达到教育部及考生所在省高水平运动队招生标准,符合我校高水平运动队招生条件和运动队发展需要的考生,择优给予入选资格。入选资格名单上报教育部学生司和考生所在省(区、市)招办审批、教育部高考阳光平台上公示,并在学校本科招生网上公示。
2.录取:
具有我校高水平运动队入选资格的考生须参加全国统一高考,并在相应志愿批次中填报中国石油大学(北京)。考生文化成绩达到所属生源地省(区、市)本科第二批次录取控制分数线者,可予以录取。对少数体育专项测试成绩特别突出,确有培养前途的考生,文化成绩达到所属生源地省(区、市)本科第二批次录取控制分数线65%者,由学校提出申请,报生源地所属省级高招办审核后可录取。具有一级(含)以上运动员证书的考生,须参加全国统一高考,按高考成绩达到所属生源地省(区、市)本科第二批次录取控制分数线65%执行。对于合并批次的省份,按相关省级教育行政部门或招生考试机构确定的“高水平运动队”相应合格录取控制线执行。
3.专业:
考生专业志愿填报为我校经济学类、管理学类下设的相关专业。对于达到生源地高考一本线的考生,可以自由选择我校对应的理工科或文科专业。
未尽事宜按教育部当年有关政策执行。
七、监督机制
1.学校招生工作领导小组负责高水平运动队选拔录取领导工作,本科招生办和体育教学部负责具体实施,所有测试项目将进行全程录像,学校纪检监察部门全程参与监督。学校成立特殊类型招生考试仲裁小组,依据相关办法和程序,处理特殊类型招生中所涉及专项测试的争议申诉。
2.考生本人应本着诚信原则,严格按照程序进行申请并参加测试。报名材料必须属实,如有弄虚作假者,一经查实,将取消该生的报名与测试资格。
3.我校将在入学后对所录取的学生进行身体健康复检和运动水平复测,凡不符合录取要求或者弄虚作假者,取消入学资格。
八、管理条例
我校录取的高水平运动队考生在校学习期间,必须遵守学校的有关规定,服从安排,参加学校组织的有关体育训练和比赛活动,承担个人应尽的义务。
九、联系方式
地 址:北京市昌平区府学路18号中国石油大学(北京)体育教学部
邮 编:102249
联系人:马晓旭
联系电话:010-89739165
电子邮箱:xiaoxu_cup@163.com